Urlaub Für Zwei

Ob für ein verlängertes Wochenende oder eine ganze Woche voller Entspannung – diese lichtdurchflutete Wohnung erfüllt alle Wünsche des Urlaubsherzens.

Beim Frühstück im Sommer auf dem großzügigen Balkon hat man einen herrlichen Blick nach Riezlern. Nach einem Tag auf der Piste kann man einen Drink auf dem französischen Südbalkon mit Blick auf die Walser Berge zelebrieren. Die Wohnung bietet ausreichend Platz für Yoga oder einfach zum Relaxen auf dem Sofa.

Die Ferienwohnung "Für Zwei" ergänzt sich ideal mit der Ferienwohnung "Familie" im gleichen Stock, perfekt für einen Urlaub mit der gesamten Großfamilie.

 

Auf einen Blick

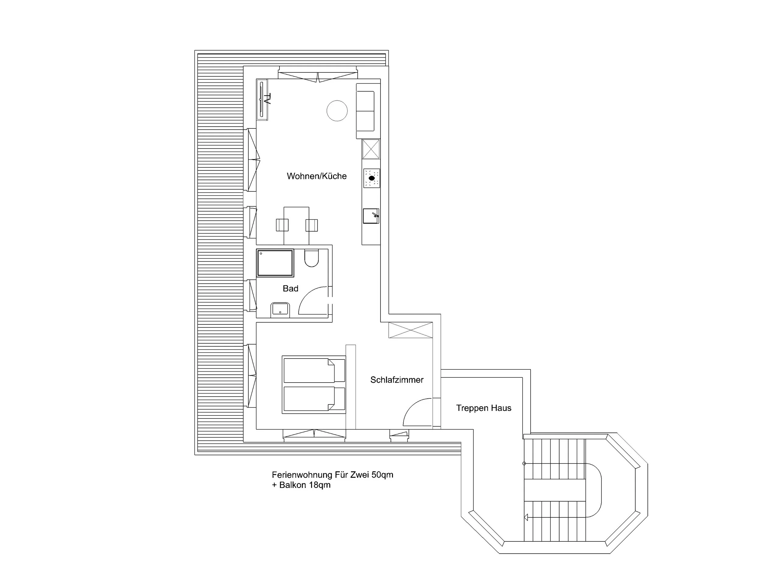
  • 50 qm

  • 1. Stock

  • Fußbodenheizung

  • 18 qm Balkon

  • 1 Wohnküche

  • 1 Schlafzimmer

  • 1 Badezimmer

  • Bergbahn Unlimited inklusive im Sommer

  • Brötchenservice 

Preise

Winter
€135/ Nacht

Nebensaison
€110/ Nacht

Sommer
€135/ Nacht inkl Bergbahn Unlimited

Preis für 1-2 Personen

Bitte lest unsere Buchungsbedingungen

Jetzt Buchen

Bilder Ferienwohnung Für Zwei